Overview
- Updated On:
- November 26, 2025
- 5 Bedrooms
- 507 m2
- 648 m2
Description
In the prestigious heart of Cascais, this villa redefines luxury living. Set on a private plot of 648 m², this independent 5-bedroom residence is a masterful combination of contemporary architecture, functional design, premium finishes, and absolute privacy.
Exceptional Living Spaces
Spread across three floors, with a gross construction area of 507,19 m², has been designed to provide both elegance and comfort:
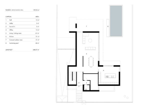
- Ground Floor (159,64 m²): A grand 67 m² living and dining room with seamless access to the garden and pool, a spacious 31 m² kitchen, a home office, and a covered outdoor lounge area perfect for entertaining.
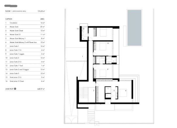
- First Floor (174,30 m²): A lavish master suite with walk-in closet, luxury bathroom, and two private balconies, plus three junior suites, each with private bathrooms, loggias, and garden views.
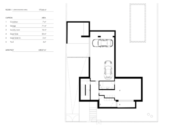
- Lower Level (173,66 m²): Includes a 71 m² garage, a guest suite with en-suite bathroom, laundry room, and additional service areas — ensuring practicality without compromising elegance.
Outdoor Luxury
Enjoy a private 28 m² swimming pool, surrounded by landscaped gardens and elegant outdoor areas designed for relaxation and entertainment.
Prime Location – Cascais at Its Finest
Cascais is internationally acclaimed for its quality of life, cosmopolitan spirit, and coastal charm. Here, you’ll find:
- Iconic beaches such as Praia do Guincho and Praia da Rainha
- The renowned Cascais Marina and world-class golf courses like Oitavos Dunes
- Michelin-starred dining and internationally acclaimed gastronomy
- Prestigious international schools, including St. Julian’s and King’s College
- Cultural landmarks like the Paula Rego Museum and the Cascais Citadel, with Sintra just 15 minutes away
All this, with Lisbon only 20 minutes via the A5 motorway, ensuring perfect connectivity while enjoying the exclusivity of a residential haven.























